Aktuális

Családi ház építés ár - CSOK kedvezmény

Családi ház építés ár családi otthonteremtési kedvezménnyel

tovább ...

Oknoplast Kunststofffenster online

Bestellen Sie Oknoplast Platinium und Winergetic Kunststofffenster mit online Aktion

tovább ...

Oknoplast ablak online akció

Oknoplast műanyag ablak Platinium és Winergetic Premium profil

tovább ...

Ajtó ablak raktár

állandó több száz darabos nyílászáró raktárkészlet

tovább ...

Családi ház építési költsége

Családi ház építési költsége előzetes kalkulátor standard műszaki tartalomra

tovább ...

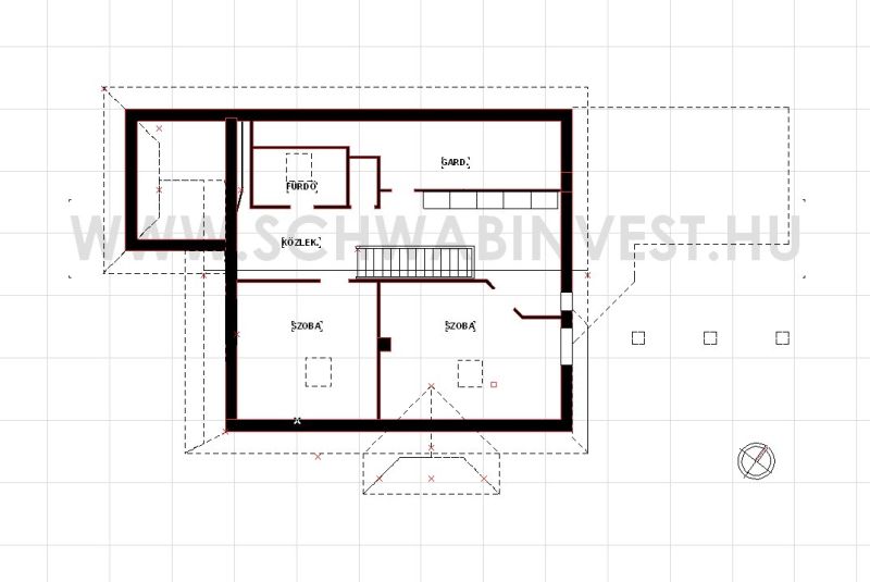
családi ház alaprajzok

Megépült munkáink közül bemutatunk néhány családi ház alaprajzot kategóriák szerint:

 

földszint-emeletes

  földszint emelet
1.
2.    
3.    
4.    
5.    
6.    
     
     
     
     
     
     
     
     
     
     
     
     
     

 földszintes

  földszint
1.
2.
3.
4.
5.
6.
   
   
   
   
   
   
   
   
   
   
   
   
   

földszint-tetőteres

  földszint tetőtér
1.
2.    
3.    
4.    
5.    
6.